
After seeing countless homes destroyed in three recent natural disasters, an architectural contest was held to attract specific storm-proof house designs for three impacted cities.
New York City and New Orleans, affected by Hurricane Sandy and Hurricane Katrina respectively, both tapped energy-efficient winners in the Designing Recovery competition, sponsored chiefly by the American Institute of Architects. But the design that was picked for Joplin, Missouri—where an EF-5 tornado killed 158 people and caused $2.8 billion in damage in 2011—could become the blueprint for safe, yet functional homes in places at risk for storms.
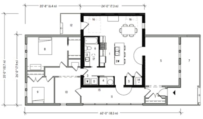
The design was profiled by Atlantic Cities and, rather than the cold and uncomfortable design of surrounding the entire home with thick walls and steel doors, the house features a tornado-resistant core.

The architectural team, Q4 Architects, was limited by the fact that Joplin’s geology doesn’t allow for tornado cellars or basements. And they didn’t want to design a bunker dressed up as a home. Their solution was a 600 square-foot core with walls made of concrete masonry that includes hurricane shutters and tornado doors.
And it’s not by accident that this core of the home is where the kitchen, a bathroom and access to backup systems are located. While riding out a storm, the designers wanted to make sure essential elements were contained in the core but in a way that made sense to a functional home layout. A set of Murphy beds are also located in the core.
The best part? The CORE design is meant to be constructed for less than $50,000.